13208166786
韩式帐篷(济州阳光岛)

韩式帐篷(济州阳光岛)

主材:φ80防腐烤漆木
外膜:PVDF优质膜材
内膜:帆布
墙体:帆布
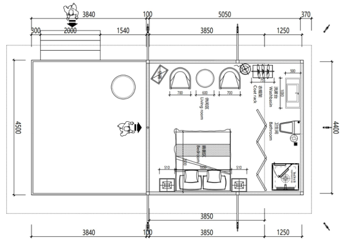
规格:4.5m*9m
套内面积:23.1㎡
投影面积:56㎡
抗风等级:6级以下

“济州岛阳光帐篷”以韩国济州岛的自然风光为设计蓝本,主打轻量化便携、高颜值美学与多功能性,旨在让用户在露营时既能享受如海岛般的惬意阳光,又能获得可靠的防护体验。适合自驾游、沙滩派对、音乐节及家庭亲子活动等场景。
产品咨询
产品介绍

韩式帐篷(济州阳光岛)

韩式帐篷(济州阳光岛)

韩式帐篷(济州阳光岛)

韩式帐篷(济州阳光岛)

韩式帐篷(济州阳光岛)

上一篇:
阿拉亚帐篷

产品咨询